股票代码
836946

选择区域/语言 在线留言3D展厅VR全景 欢迎进入经典版bb小游戏大全 官网!

专注筛分行业40+年超10000+客户的选择

全国咨询热线: 400-0373-685 / 0373-5701115

矿用筛分设备
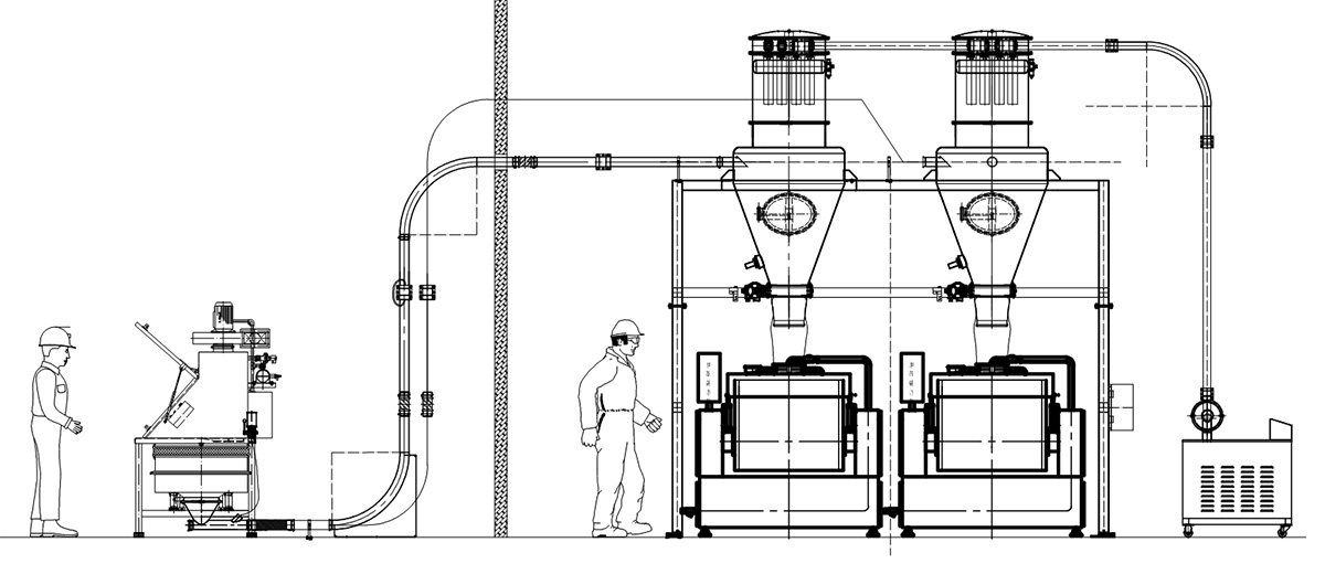
洛阳**食品公司中央厨房面粉供料系统
返回列表 来源: 发布日期: 2020.08.03
中央厨房面粉供料系统

洛阳某食品公司建设中央厨房,采用17yy经典小游戏 面粉供料系统完成从面粉至和面机的自动供粉工艺,实现源头的可视化,确保整体项目的自动化作业。

应用领域
  • 包子


  • 馒头


  • 蛋糕


  • 饺子


行业现状

劳动强度大

需要设置单独的筛分间,人工将面粉投到振动筛,没有投料平台,劳动强度大。

环境差

人工控制加料速度,地面到处是落地粉和筛分产生的扬尘。

二次污染

人工将面粉二次包装转运至操作间,无法避免转运中的二次污染风险,同时也增加了劳动强度。

解决方案
系统方案
系统方案
  • 01无尘投料,环境粉尘浓度低
  • 02在线筛分
  • 03自动转运、动耗低
  • 04管道内“0”残留
客户现场
  • 客户现场


  • 客户现场


【相关推荐】

全国服务热线

400-0373-685
Baidu
map